Immobilien Richter:
Ein besonderes Domizil
Ein Mehrfamilienhaus mit zwei separaten Wohnungen, die auch gemeinsam bewohnt werden können
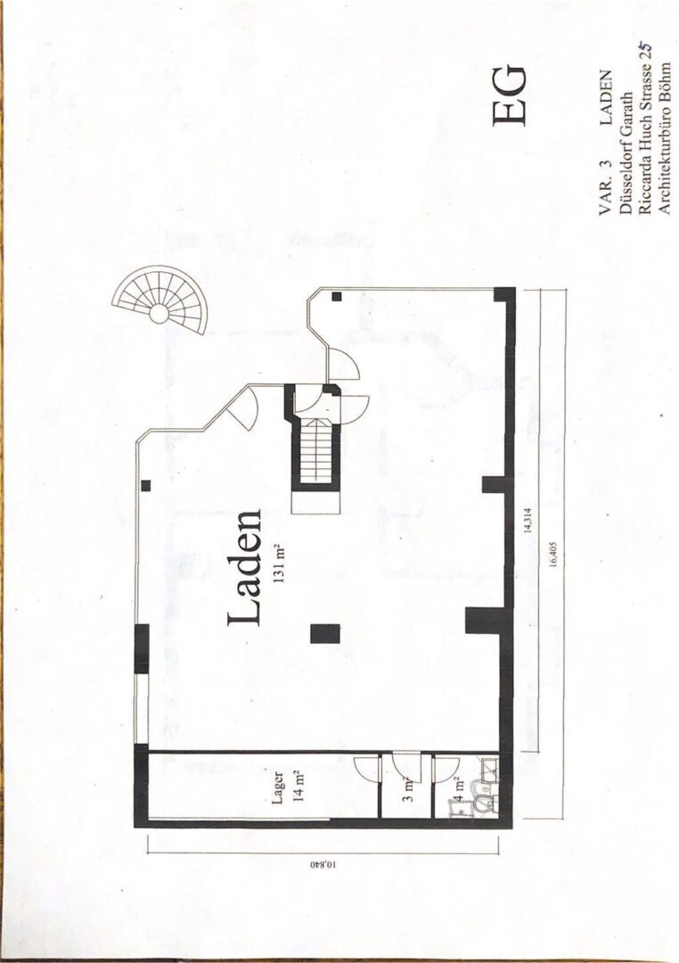
Erdgeschoss: Gewerbefläche, vielfältig nutzbar (Praxis, Atelier, Büro, Galerie, Apotheke, Ergotherapie, usw.)
Obergeschoss: Zwei großzügige Wohneinheiten, bei Bedarf als zusammenliegendes Domizil nutzbar
Aufteilung:
Insgesamt 5 Zimmer (5 Zi)
Ein Balkon und eine Terrasse
Parkettboden in den Wohnbereichen, gepflegte Holzfenster
Ruhige, familien- oder künstlerfreundliche Lage
1 Stellplatz im Eigentum bzw. zur Nutzung vorgesehen
Wohnflächen und Grundrisse (Vorschläge)
Wohnung A (oben oder zusammenhängend nutzbar): 2 Zi., ca. 68 m²
Wohnung B (oben oder zusammenhängend nutzbar): 4 Zi., ca. 86 m²
Gewerbefläche Erdgeschoss: ca. 150 m² (offene Fläche oder abteilbare Räume)
Parkettboden in den Wohnbereichen für zeitlose Wärme
Holzfenster mit guter Schall- und Wärmedämmung
Ein Balkon und eine Terrasse für sonnige Auszeiten
Ruhige Lage trotz zentraler Erreichbarkeit
Stellplatz vorhanden (1 PKW)
Besonderheiten:
Eignet sich besonders für Künstler, Individualisten, eine große Familie oder kreative Nutzungsformen
Historische Anklänge durch Einordnung in das Umfeld des Architekten Gottfried Böhm (sichtbare Inspiration, hochwertige Bauweise)
Vielseitige Nutzungsmöglichkeiten: Wohnen, Arbeiten, Atelier, Praxis, Galerie
Zielgruppe, eine Logopädie wäre in den Gewerbeflächen wünschenswert, Altenheim in direkter Umgebung, sowie Schule und Kindergarten in nächster Nähe.
Familien, Künstler, Freiberufler, kleine Gewerbetreibende, Therapie, Investoren mit Nutzungsflexibilität
Kauf- oder Mietpreise
Preis-/Mietrahmen nach Vereinbarung: auf Anfrage
Energetischer Zustand: Bedarfsgerechte Angaben nach vorhandenen Unterlagen (Energieausweis liegt vor bzw. wird nachgereicht)
Weitere Informationen
Besichtigungen nach Vereinbarung unter +49 (0)160 4948113 Lilian Hoffmann
Baulichen Details können auf Wunsch bereitgestellt werden.













